Agence LMA
La Mémoire Active

Cité de Carcassonne, Carcassonne

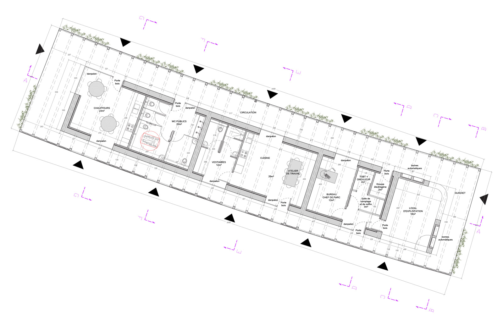
Bâtiment d’accueil — Maîtrise d’œuvre complète

Aude
Cité de Carcassonne

Maître d’ouvrage

Ville de Carcassonne – Monuments Nationaux

Maître(s) d’œuvre

Agence LMA Laure Marieu Architecte du Patrimoine – Agence Folléa-Gautier paysagistes urbanistes – N. Faucherre Archéologue et L.Pavlidis Historien

Mission

Maîtrise d’œuvre pour la création d’un bâtiment d’accueil du public dans le cadre de l’Opération Grand Site Porte Narbonnaise

Calendrier

Chantier prévu pour 2026

Montant des travaux

NC

Protection

Classée Monument Historique, Monument National, Patrimoine mondial UNESCO

Autres projets à découvrir dans la catégorie